: MPH
: Bureau
: Travaux
: Media
: News

: Quartal
 

MPH Architectes - Lausanne, Barcelona
http://www.mpharchitectes.ch








REALISATION
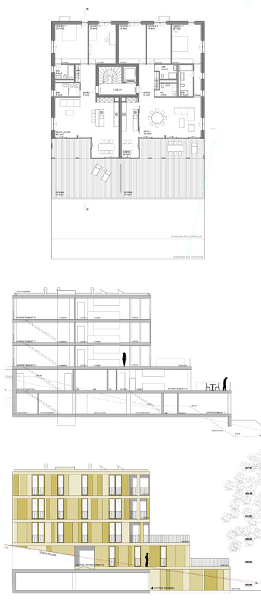
LOGEMENT PPE "LE MANOIR"

Pully, Chemin du Manoir
Projet, Réalisation 2012-2017

***

Immeuble de 8 appartements
Vente par lot PPE